Spring Run Estates D4 428

Phoenix Craftsman
$680,000

9579 NORTH 3555 EAST EAGLE MOUNTAIN, UTAH 84005

Community:
The Orchards
Floor Plan:
Phoenix
Building Stage:
Under Construction
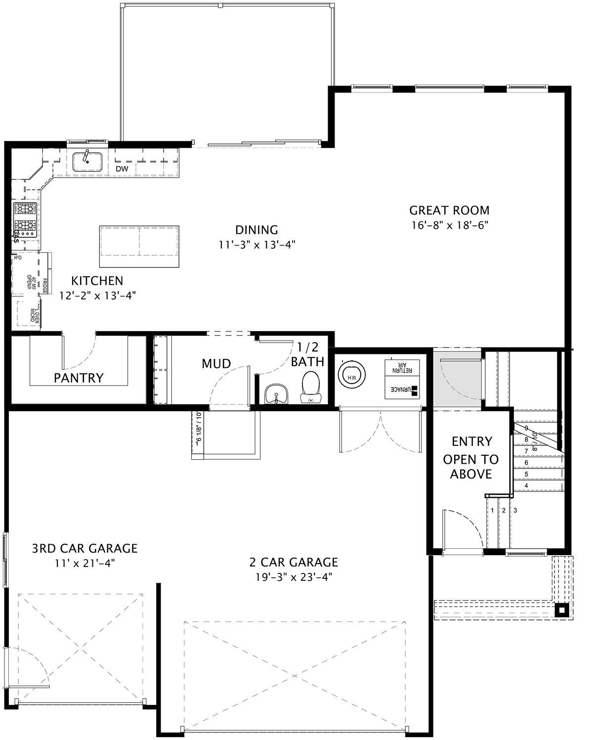
Home Details
Bedrooms Icon
4
Bed
Bathrooms Icon
3
Bath
Square Footage Icon
Finished SF:
2,203
Square Footage Icon
Total SF:
3,280
GALLERY
No items found.
LOCATION

9579 NORTH 3555 EAST EAGLE MOUNTAIN, UTAH 84005

Interested?

We're ready when you are.

We've partnered with many experienced realtors that are excited to help you get into your new home! Contact them today to begin the planning process.
Andrew Tuttle
Revere Homes
Other Listings you may like

What our customers say.